工艺标准(质量验收标准):
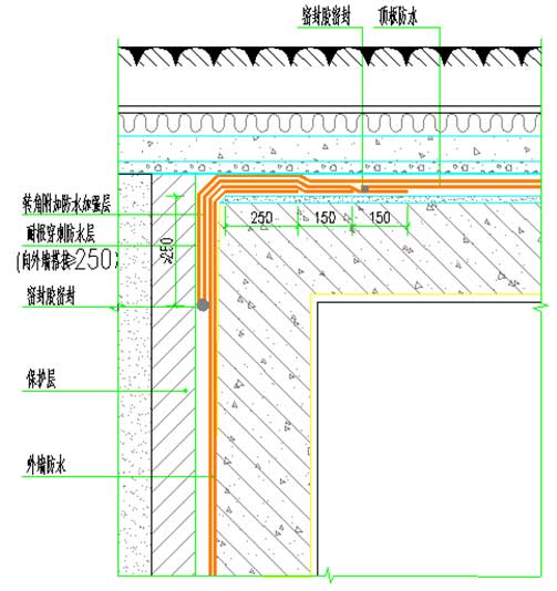
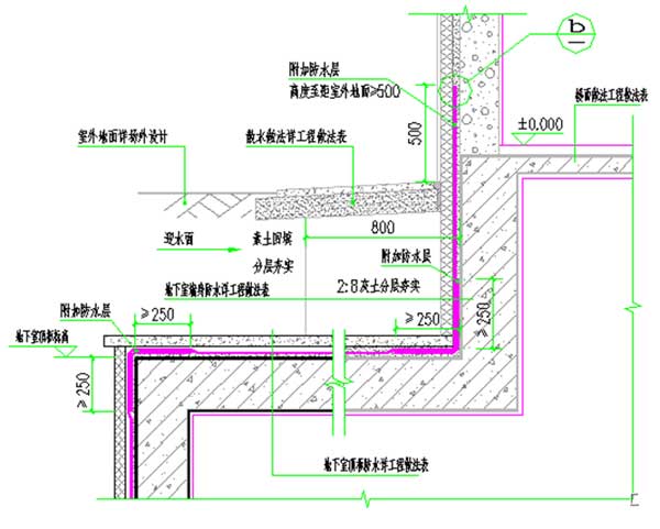
1、电梯底坑、集水坑在阴阳角处必须施工防水附加层;
2、防水卷材施工完成后,必须及时施工防水保护层;
3、电�����������������������䐳�鳄È鳄È漏漏】暴雨来袭,雨期施工及防汛专项措施!center;">
同期举办:2021安徽保温墙材技术高峰论坛
时间:2021年9月24-26日 地点:合肥滨湖国际会展中心
邀请函 INVITATION
支持单位:
安徽省房地产业协会 、安徽省建筑节能与科技协会、安徽省建筑业协会
主办单位:
安徽省墙体材料革新和建筑材料节能协会、合肥市房地产业协会
合肥市绿色建筑与勘察设计协会、合肥市新型墙体材料协会
安徽省涂料行业协会、安徽省门窗幕墙协会、合肥市玻璃商会
承办单位:
安徽安采展览服务有限公司 武汉风向标会展服务有限公司
武汉凯信会展有限公司
展会概况
安徽建博会已成功举办4届,成为安徽地区建筑建材专业B2B商贸交流平台。安徽省住建厅合肥市城建局领导每届亲临指导,上届展会已于2020年9月25日在滨湖会展中心圆满结束。展示企业包括三一筑工、晶宫绿建、置润节能、金刚节能、金斯尔节能、居欢新材、安徽铭科、海志达保温、河北京奥、安徽广润、安徽国弘、嘉友玻纤、寓景建材、天辰化工、合肥新安、亳州伟图、东旺奥发保温、万里绝热材料、合肥东敖、天宇纤维、河南盛都、华翱板业、好思家涂料、科创美涂料、雅特兰新材、雅圆建材、英特力新材、万博制漆、芜湖杰石、龙阳节能、天锦云节能防水、百善建筑节能、联合涂料、安徽拓远、州圆防水、上海尚南、上海卓梦、郑州工大、无锡尊丰、安徽丽砂宝、山东天睿、重庆千美集等,展出面积近2万㎡,展商300余家,将延续“免费大巴接送、包车票、包住宿”参观组织模式,安徽全省各地市县住建委、建筑节能办、建筑节能协会、建筑业协会、地产协会、设计协会等众多参观团前来观摩交流。
组织特色
数据库邀约:2021安徽建筑节能展拥有数万条精确观众数据库以及往届核心买家名录,采用呼叫中心、抖音、头条、微信朋友圈、短信息、Q群微信群等新媒体多方式邀约,精心组织观众到场。
宣传推广:2021安徽建筑节能展还将在《墙材革新与建筑节能》、中国保温涂料网、建筑科技网、建筑节能资讯网、筑能网、安徽绿色建筑网等专业网刊以及展会、协会自媒体,本地合肥晚报、今报、安徽商报等主流传媒上发布会讯或刊登广告,篇幅达一千余,全面扩大、提升本届展会影响力。同时,在安徽各地建材市场、全国各地同类展会进行全方位地推。
参观补贴:展会将实施“免费大巴接送、包午餐、包住宿”组织参观模式,本届展会期间预计将派出百台大巴到安徽省内各市县建筑节能办、墙改办、地产商、设计商、工程商、建材(商)协会、建材市场、在建工程单位进行免费接送,并对周边距离较远的买家提供免费住宿。
配套活动:2021安徽建博会拟定同期举办多场次论坛:2021装配式智能智造与装修技术研讨交流会、2021安徽保温墙材技术高峰论坛、2021第4届安徽门窗幕墙发展高峰论坛等。
【展览范围】
展览范围
1、新型外墙装饰板材:各类装饰一体化保温板、建筑陶瓷薄板、陶板(陶土板)、木塑外墙挂板、PVC外墙挂板、GRC外墙材料、金属饰板、金属装饰墙面系统、铝塑板、复合保温板、轻质复合墙板、中空隔墙板、防火保温板、A级防火板材等;
2、建筑保温系统及材料:外墙外保温系统、外墙内保温系统、幕墙保温系统、玻璃隔热系统、屋面防水保温系统、保温、隔热配套材料及防火防腐材料;各类保温砂浆、胶粘剂、矿棉、岩棉、玻璃棉、膨胀珍珠岩、隔热膜及外墙保温设备等;
3、新型墙体材料及设备:各类石膏板、纤维水泥板、金属面夹芯板、岩棉板、轻质复合保温砌块、www.堵dulou100.com、石膏砌块、混凝土制品、混凝土空心砌块、加气混凝土砌块及石膏砌块设备、空心砖、轻质隔墙板设备、新型钢筋、高性能混凝土设备、混凝土砌块成型机、墙材制造机械等;
4、建筑防水及新型涂料:防水材料、沥青基防水卷材、高分子防水卷材、密封材料、防水涂料、堵漏材料、内外墙涂料、真石漆、填缝剂、粘结剂、混凝土减水剂、溶剂型涂料、水溶性涂料、涂层涂料、石膏材料、地坪系统、防火(木器)涂料、预拌混凝土、无气喷涂机设备等;
5、屋顶及立体绿化材料:保温隔热材料、屋面虹吸雨水排水系统、雨水收集利用系统、雨水收集模块、架空分离材料、各种屋面瓦、光伏瓦、瓦材制品、屋顶绿化系统、种植植物材料、新型木塑材料、木结构房屋、木制别墅,生态木屋、护栏栅栏、园林景观木结构等;
6、建筑部品件:粘结剂、锚栓、紧固件、玻纤网格布、建筑添加剂、干混砂浆、纤维素、玻化微珠、陶粒等。
7、建筑节能相关产品系统:新型建筑模板、海绵城市系列、城市地下管网、智能家居系统、智能节水节电设备、太阳能建筑一体化等;建筑设计、园林景观设计、家居设计等。
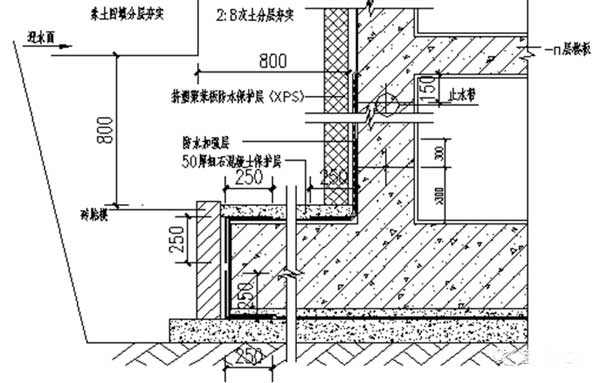
>(4)修复所有地下室底板泉眼涌水渗漏点后,地下室应铺设聚乙烯聚丙烯聚合物防水卷材。