专业防水堵漏施工

具有防水防腐保温一级施工资质,承接建筑防水、堵漏、修缮、加固、防腐等业务

技术百科
浙江地铁富春路站基坑漏水堵漏处理措施分析【多图讲解】
发布时间:2025-01-08 来源:涌达建工 浏览:263次
杭州地铁堵漏 
1、工程概况
富春路站是杭州地铁1、4号线工程的换乘站,即是盾构始发站又是吊出站,在婺江路和富春路下呈“丁”字形布置。
1号线车站位于婺江路下,为地下三层三跨岛式车站,车站主体长为247.4m,标准段宽度为21.3m,标准段挖深约23.43m,端头井挖深约25.13m。围护结构采用1m厚地下连续墙,连续墙采用锁口管接头形式。标准段设6道支撑,第5道为双拼,端头井设7道支撑,第6道为双拼。1、4道为钢筋砼支撑,其它支撑采用φ609mm壁厚16mm的钢管支撑。
4号线车站位于富春路下,为地下两层三跨岛式车站,车站主体长为370.1m,标准段宽度为19.3m,标准段挖深约16.4m,端头井挖深约18.2m,围护结构采用0.8m厚地下连续墙,墙深约29m,连续墙采用锁口管接头形式。标准段设4道支撑,端头井设5道支撑,1道为钢筋砼支撑,其它支撑采用φ609mm壁厚16mm的钢管支撑。
2、工程地质、水文状况
2.1、工程地质
车站拟建场地处于杭州市南面,临近钱塘江,属钱塘江冲海积平原地貌单元。本工程所处地质情况至上而下为:①杂填土:层厚1~6m。②全新统上中段冲海相沉积层,下分5个亚层:②-3砂质粉土:层厚0~6.2m。②-4砂质粉土夹粉砂:层厚2.2~7.8m。②-5粉砂夹砂质粉土:层厚1.3~8.7m。②-6砂质粉土:层厚1~5.7m。②-7砂质粉土夹粉细砂:层厚0~3.5m。⑤全新统下段浅海、滨海相沉积层,下分2个亚层:⑤-1淤泥质粉质粘土:层厚1.7~5.3m。⑤-2粉质粘土:层厚0~1.3m。⑥晚更新统上段河、湖相沉积,下分2个亚层:⑥-2粉质粘土:层厚1.5~4.7m。⑥-夹砾砂:层厚1~4.9m。⑧晚更新统上段古钱塘江河流冲洪积相沉积层,下分2个亚层:⑧-1中粗砂:层厚0~1.5m。⑧-4卵石:钻孔揭露最大厚度26.65m。13白垩纪下统粉砂岩、含砾粉砂岩,本次勘探仅揭露强风化层。13-2强风化粉砂岩、含砾粉砂岩,钻孔揭露最大厚度为4.3m。14侏罗系上统泥灰岩,本次勘探仅揭露强风化层。14-2强风化泥灰岩,钻孔揭露最大厚度1.55m。
1号线车站底板位于⑤-1淤泥质粉质粘土层上,4号线车站底板位于②-5粉砂夹砂质粉土和②-6砂质粉土层,高压缩性,低强度,高灵敏度,开挖施工时易产生触变和流塑性变形。
2.2、水文地质
本场地地下水类型主要是第四纪松散岩类孔隙水,根据地下水的含水介质、赋存条件、水理性质和水利特征,可划分为孔隙潜水和孔隙承压水两大类。
本场地区域浅部地下水属孔隙性潜水类型,主要赋存于上部①层填土及②层粉土、粉砂中,补给来源主要为大气降水及地表水,并与河塘呈互为补给关系,地下水位随季节性变化,与钱塘江江水具有水力联系,水位埋深1.1~4.15m,对应高程为3.53~5.34m。根据区域水文地质资料,浅层地下水位年变幅为1~2m,场地年均最高地下水位为地表下0.5m左右。
本场地区域承压含水层主要分布于深部的⑧-1层中粗砂和⑧-4层卵石中,水量较丰富,隔水层为上部的粘性土层(⑤、⑥层),承压水层顶板高程为-25.43~-23.23m,隔水层顶板高程为-16.65~-14.86m。承压水头埋深在地表下9.66~11m。
3、基坑开挖中渗漏水处理
本工程基坑开挖采用明挖法施工,遵循“分段分层、对称平衡,由上而下、先支撑后开挖”的原则,分层、分区、分块、分段,抽槽开挖、留土护壁,先撑后挖。但因地质条件差,地下水位高,基坑开挖施工风险很大,极易出现连续墙缝渗漏水现象。
3.1、1号线W1-2与S1-31连续墙接缝漏水处理
3.1.1、情况概要
2009年8月9日上午,因连续几日暴雨影响,1号线W1-2与S1-31连续墙接缝(具体位置见下图),在地面下7m处突发漏水,且漏水泥沙含量较大,导致基坑外水土流失,现场值班人员发现后,立即上报了现场情况,项目部立即启动了应急预案,组织人员及时进行了处理,下午16时,漏水点到了得到了有效控制,停止漏水。情况发生后,项目部以每1小时测量1次的频率,对所有监测项目不间断进行了监测,发现受水土流失影响,1号线基坑周边土体分层沉降监测点CX19,累计沉降达到了26.5cm,严重超过警戒值(+30mm),漏水点停止渗漏后,经继续监测,土体沉降基本稳定。支撑轴力,墙体位移等其余监测项目处于正常范围,基坑及周边建筑物处于安全稳定状态。
杭州地铁堵漏 
3.1.2、原因分析
(1)、受台风“莫拉克”影响,杭州多日连降暴雨,坑外地表水量及土体含水量迅速增大,导致基坑外水压力加大,连续墙接缝发生漏水并带有泥沙,连续墙外水土流失严重,致使土体收缩沉降。
(2)、漏水点在婺江路地面下7m位置,此范围土体为粉质沙土,且根据基坑已开挖部分土体发现,婺江路下土体不太密实,若连续墙接缝发生渗漏,土体极易随漏水流失,并收缩沉降。
(3)、W1-2与S1-31连续墙接缝质量不好,接缝夹泥较多,连接质量不好,在前期开挖施工中,接缝已不断渗水,经止水处理,渗水量较小,且不掺有泥沙,故未做进一步处理,导致暴雨来临后,接缝渗水处漏水流沙。
3.1.3、处理措施
(1)、发现漏水情况后,项目部立即组织了人员,分成两班,轮换作业,用木楔子配合棉纱堵塞漏水口,同时在漏水位置堆码沙袋,防止泥沙随漏水进一步流失。沙袋堆码时,层层压茬,并踩踏压实,确保沙袋堆稳定性,在堆码过程中,不断用棉纱对沙袋接缝处渗水进行封塞。
(2)、堆码沙袋后,漏水得到控制,漏水量有所减小,泥沙经棉纱过滤,流失量已经很少。此时在漏水连续墙接缝处埋管注浆,进行封堵,注浆施工方法和步骤:
①、在渗水点上方2米左右位置钻眼埋管,打眼深度约50cm,位置须与漏水点有足够的距离,以免注浆过程中,受注浆压力影响,将浆液从漏水点处压出。钻眼过程中,仔细观察接缝渗水情况,避免形成新的漏水点,如漏水严重,必须立即停止钻眼。钻眼完成后,用高压水枪清洗眼孔,去除眼孔内的浮碴、泥土等杂物,使眼孔干净。
②、预埋注浆管并封堵眼孔。使用双快水泥嵌缝,双快水泥能在潮湿基面施工,且能迅速凝结,与眼孔间混凝土有牢固的粘结力,耐久性好,不开裂,注浆管采用φ25mm钢管,钢管口有丝口,可与注浆机导管连接。
将注浆钢管插入眼孔,将双快水泥搅拌均匀成团桩,人工将水泥团嵌入眼孔,并挤压密实,将注浆管四周封死填平。嵌缝过程中,必须保证注浆钢管不被堵死,嵌缝后,钢管内有水冒出。
③、待嵌缝双快水泥凝固后,进行注浆。浆液材料为水泥浆与水玻璃配合使用,注浆初期,先采用纯水玻璃注浆封口,压力缓慢增加,以水玻璃从漏水口流出为准,注浆3-5分钟后,停注1分钟,使水玻璃凝结,然后继续注浆,注浆数次后,漏水口被封堵,漏水量明显减小,将浆液换成配合比为1:1的水玻璃与水泥浆混合体,继续注浆,若浆液从连续墙接缝处流出,即停止注浆,并再次换注水玻璃封口,
水玻璃浆材具有可灌性好,耐久性强,凝胶时间短的特点,是一种较为理想的化学灌浆材料。 由于水玻璃浆材为真溶液,浆液起始粘度低,且保持低粘度的时间可满足注浆工艺要求,所以粒径在0.1mm以上的土层均能得到有效的灌注, 能够满足一般砂土地层的注浆要求,且水玻璃接近胶凝时浆液粘度具有迅速形成凝胶的特点,可使水玻璃浆液与被加固物体的迅速形成强度,使用其进行止水堵漏,可取得很好的效果。
④、灌浆完毕后,用棉纱塞入注浆管口进行封管,并观察一段时间,确定管口没有渗水现象。
(3)、为确保此处连续墙接缝止水效果,注浆止水后,在连续墙后施工高压旋喷桩,消除后期开挖中,此处连续墙接缝的渗漏隐患。旋喷桩布置形式见下图:
杭州地铁堵漏 
高压旋喷桩参数及施工工艺与已施工连续墙接缝止水旋喷桩相同,桩径为650mm,桩心间距为400mm,旋喷深度为地面至基底以下5m,共在接缝处布置5根。施工中,随时观察开挖面以上接缝情况,防止因旋喷压力导致接缝处封堵混凝土开裂,出现漏浆。
3.2、1号线E1-6和N1-33连续墙接缝漏水处理
3.2.1、情况概要
2009年11月28日8时10分,富春路站1号线基坑E1-6和N1-33地连墙接缝在地面以下约18m处,发生涌水事故,项目部立即进行坑内堆码土袋封堵,在9时40分坑内漏水点被堵住。
由于涌水量较大,漏水点位置的土体主要为砂质粉土和砂质粉土夹粉细砂,坑外土体大量流失,造成连续墙墙后地面及富春路变电所围墙局部发生塌陷,5m×3 m范围内最大塌陷深度约为30 cm,影响范围约为5 m×10 m。
3.2.2、漏水原因分析
(1)、此处连续墙接缝衔接可能局部夹泥,形成较大孔洞,导致坑外潜水突破墙缝薄弱处从而涌入坑内。N1-33是个异型槽段,异型槽段在成槽过程中可能出现槽壁坍塌,灌注时砼无法将土方上顶,而是绕过该堆土方,使连续墙墙体夹泥,形成了孔洞。
(2)、在N1-33和N1-34连续墙接缝处出现错台,并有较小的渗漏水现象,孔洞漏出的水从土体内窜流上涌,从土体空隙较大处流出,造成了渗漏点假象,真正的渗水点没有被发现处理。
3.2.3、监测情况
在10月28日发生漏水情况后监测频率做了相应的调整,房屋沉降监测为1次/2小时,地表沉降、水位监测、轴力监测以及测斜监测都为2次/天。
发生漏水情况后的监测数据情况为:秋涛变电所3号点发生沉降6.1mm;秋涛变电所6号点发生沉降5.5mm;其他监测点变化不大。
3.2.4、处理方案一
(1)、漏水点和疑似漏水点用双液注浆机进行(水泥+水玻璃)注浆堵漏,将漏水点流水堵住。注浆时在漏水点处的基坑内派3个专人进行堆土袋处和连续墙接缝处进行观察,确保不发生再次漏水;
(2)、在渗漏点外侧施做2排双液注浆孔做止水帷幕,靠近连续墙侧500mm采用@800mm的双液注浆加固。加固深度为地面下15m(第四道混凝土支撑下口)至地面下28米(即基底以下3.5 m),梅花形布置。浆液配合比为1:1,注浆压力不小于2 MPa。双液注浆孔位布置、双液注浆的剖面示意图见下图。
杭州地铁堵漏 
杭州地铁堵漏 
施工顺序为:先施工远离连续墙的第2排一期注浆孔13579111315后再施工二期孔2468101214,靠近连续墙的一排施工同外侧一排的施工顺序。
杭州地铁堵漏 

(3)、注浆质量检验
注浆全部完成后,采取钻孔取芯的方法检验注浆的效果,选用专业的钻芯队伍,现场取芯3孔,达到28天无侧限抗压强度不得小于1.2Mpa,检验注浆是否连续和注浆质量。
(4)、在注浆加固完成后在连续墙外侧施做2口降水井,进行坑外降水,降水井采用专业的打井队伍进行施工,孔径800 mm,井管采用孔径300 mm无缝钢管,降水成井深度18 m,水位降至地面下10 m~12 m,减小基坑内外水位高差;
(5)、基坑内土体开挖前5天进行坑外降水井的降水工作。并加强观测秋涛变电所房屋以及周边地表的沉降监测工作,确保变电所的绝对安全。
在正式处理漏水点处的土体时,采用探坑式开挖方式,由人工将堆码的土袋子一层一层的进行搬除,每层开挖深度不大于30 cm,并进行现场观察和监控,在搬除土袋的同时确定漏水点位置,使用双快水泥处理漏水点,在漏水点外侧靠近基坑土体开挖一侧植入钢筋网片与连续墙形成整体,再使用双快水泥浆钢筋网片抹平,之后使用水泥砂浆罩面,厚度不小于10 cm。
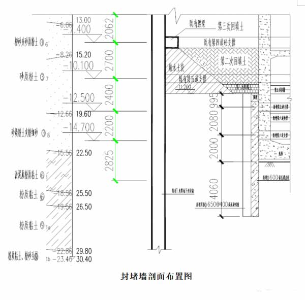
3.2.4、处理方案二
1号线联络线基坑与秋涛路变电站最近距离为12.5 m,基坑开挖过程中安全风险比较大,虽然采用了坑外注浆的方式进行了接缝补强,但不能确保后期开挖该处土方时不再发生涌水现象,考虑到联络线盾构井范围结构施工完成后并无实际用途,可在现状开挖面上设置一道封堵墙,将三角形状部分的土方预留不开挖。通过变更该范围的结构平面布置形式,使涌水点保持现在的稳定状态,确保基坑开挖安全。
(1)、封堵墙设置
在联络线三角形状范围内设置一排φ800钻孔灌注桩,桩心间距800mm,桩与桩之间紧密相接,插入比为1:0.8,根据实测现状开挖面标高,钻孔灌注桩桩长为9.135m,采用C30水下砼。钻机采用冲击钻,架立位置在第一道混凝土支撑上搭设工作平台。
(2)、止水帷幕设置
钻孔灌注桩背后布置双排φ650@400高压旋喷桩止水帷幕,桩长与钻孔灌注桩等长,单桩每米水泥用量为300kg,桩身强度要求为28天无侧限抗压强度不小于1.2MPa。
(3)、支撑布置
根据车站基底开挖标高,现状开挖面至基底的距离为5.075m,开挖该段基坑时,水平向按照一定角度重新布置4根φ609壁厚16mm钢管支撑,竖向设置两道,支撑一端担在南侧地连墙上,另一端设置在钻孔灌注桩上,钻孔灌注桩一侧设置钢围檩。该范围原设计支撑仍按照原设计架设。
(4)、支撑布置
该段基坑由于设置了封堵墙之后,且增设了4道钢管支撑,施工空间比较小,采用吊车配合人工挖土的方式进行基坑开挖,基坑开挖过程中遵循“分段分层、对称平衡,由上而下、先支撑后开挖”的原则,根据时空效应原理,遵循“分层、分区、分块、分段,抽槽开挖、留土护壁,先撑后挖,先形成中间支撑,后限时对称平衡形成端头支撑,减少无支撑暴露时间”的要求。
(5)、结构施工
结构平面布置随着围护结构的平面布置做相应的调整,竖向标高及结构布置按照原设计施工。按照竖向结构施工要求,新增一道钢支撑换撑。现状开挖面以上结构考虑到受力平衡原理,随着结构侧墙的向上施工,在进行北侧侧墙背后回填并夯实后,再拆除支撑向上继续施工结构,且现状开挖面以上北侧结构侧墙的防水构造采用涂刷聚氨酯防水涂料的方式防水,其余部位按照原设计施工防水层。
杭州地铁堵漏 
杭州地铁堵漏 
3.2.5、方案比选
方案一:采取坑外处理的施工环境较好,所施工的质量能够有效的进行控制,坑外降水和注浆施工可能引起的变形可以通过监测加以控制,对连续墙的漏水能够得到有效的封堵。
方案二:此方案同样能够起到有效封堵连续墙漏水的效果,但是施工的难度较大,尤其是在坑内施工钻孔桩的危险性较大,施工质量难以控制,而且影响后期的主体内部结构形式施工和工序的大部分调整。
通过两个方案的比较,我项目部认为方案一具有可操作性,而且对主体内部结构形式不会造成改变,还可确保工期,最终按方案一进行了坑外处理。
4、基坑开挖渗漏水预防措施
富春路站建址内土体潜水含量丰富,平均水位高度在地下2m左右,在基坑开挖过程中,坑内外水头差大,水头压力大,且处于杭州市主城区内,基坑与周边建筑物距离较近,场地内管线数量多,在基坑开挖过程中如连续墙接缝处止水效果不好,存在加泥加砂或有孔洞等问题,开挖过程中出现渗漏水,进一步发展为涌水涌砂,将导致坑外土体塌陷,基坑发生墙体位移,甚至导致基坑外建筑物变形,造成严重后果。为确保施工安全,在基坑开挖施工中,应以预防为主,提前处理,消除隐患,确保基坑开挖安全。
1、加强基坑开挖隐患排查,对有渗漏水现象的连续墙接缝加强封堵力度,处理到位,挖一处,堵一处,连续墙接缝没有处理好,不向下继续开挖,严防流砂,涌泥等现象发生。
2、基坑开挖期间,做好基坑变形监测工作,及时对监测数据进行分析,做到信息化施工,根据基坑监测情况,合理安排施工工序,采取有效施工措施,保证基坑及周边建筑物安全稳定。
3、确保水玻璃、棉纱、编织袋、水泥等各种应急物资储备到位,并定期对注浆机、备有发电机等设备进行检修,保证一旦发生突发事件时,机械的正常使用和材料的及时供应。
4、加强基坑开挖期间,坑内日常值班巡查工作,安排专人24小时不间断轮换值班,如发现突发情况,立即及时上报,并马上采取处理措施。
5、制定完善的应急预案,健全应急处理机制,保证发生突发事件时,迅速反应,及时处理,遏制事态扩大,避免造成严重后果。

声明:本网站发布的内容(图片、视频和文字)以原创、转载和分享网络内容为主,如果涉及侵权请尽快告知,我们将会在第一时间删除。文章观点不代表本网站立场,如需处理请联系客服。电话:158-5106-6698,185-5154-0999。

本站全力支持关于《中华人民共和国广告法》实施的“极限化违禁词”的相关规定,且已竭力规避使用“违禁词”。故即日起凡本网站任意页面含有极限化“违禁词”介绍的文字或图片,一律非本网站主观意愿并即刻失效,不可用于客户任何行为的参考依据。凡访客访问本网站,均表示认同此条款!反馈邮箱:348083717@qq.com。

  • 客服微信

    扫描添加好友

    免费提供:防水堵漏施工方案

  • 扫描二维码

    访问涌达防水堵漏公司手机端

  • 已帮助
    263人
    您的鼓励是作者最大的动力